Welcome to 91 Somers Street, a timeless two-family brick townhouse in Bedford Stuyvesant, offering a rare combination of charm, flexibility, and opportunity. This prewar gem is perfectly suited for both end-users and forward-thinking investors, with a layout and location that inspire creativity and long-term value. Whether your vision is to craft a dream home, generate reliable rental income, or pursue a single-family conversion, this property delivers. The expansive triplex provides comfortable living space while the upper unit helps generate strong rental income. For investors, 91 Somers Street represents has immediate upside in a rapidly growing neighborhood, the security of a stable asset, and the strength of a projected pro-forma cap rate of 5.60%.
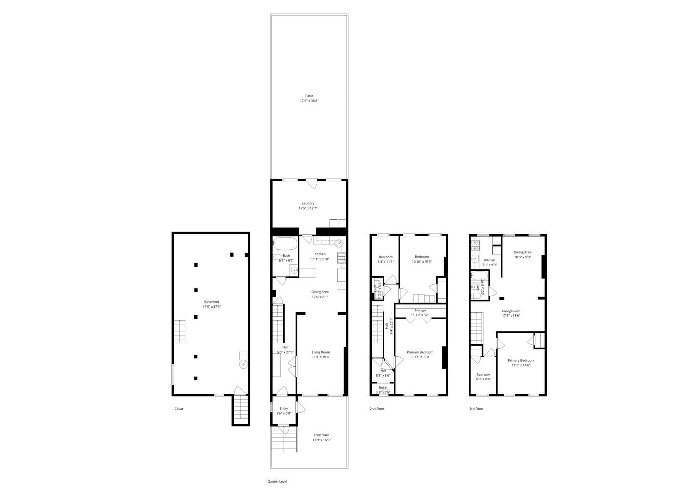
Spanning approximately 3,304 gross square feet, the property, built in 1910, offers 2,516 square feet of interior residential space plus a 788-square-foot cellar. Set on a generous 18.75' x 100' lot, it benefits from coveted Tax Class 1 status and exceptionally low annual taxes of just $3,999. Zoned R6 the home provides immediate usability as well as future development potential, with an FAR of 2.43 and approximately 2,040 buildable square feet for expansion.
The current layout features a spacious 3-bedroom, 1.5-bathroom triplex beginning on the garden level, complete with a bright living room, updated kitchen, and laundry area. Upstairs, two oversized bedrooms are complemented by a flexible home office, while the unfinished cellar offers versatile potential for a recreation room, studio, or additional storage. A private backyard serves as a tranquil retreat, ideal for entertaining, dining, or quiet relaxation. Above, the top-floor 1.5-bedroom, 1-bathroom unit features an inviting living area and a generously sized kitchen with granite countertops and stainless-steel appliances, making it an excellent income-producing rental or guest suite.
Positioned between Broadway and Atlantic Avenues, 91 Somers Street offers seamless access to Bedford Stuyvesant's rich cultural scene, eclectic dining, shopping, and green spaces. Commuting is effortless with nearby access to the J, Z, A, C, and L subway lines, as well as the LIRR, connecting you easily to the rest of Brooklyn and Manhattan.
Whether you're envisioning a primary residence with rental income, a stable investment with room to grow, or a future single-family conversion, 91 Somers Street delivers an exceptional blend of space, value, and location in one of Brooklyn's most dynamic and historically rich neighborhoods.
Welcome to 91 Somers Street, a timeless two-family brick townhouse in Bedford Stuyvesant, offering a rare combination of charm, flexibility, and opportunity. This prewar gem is perfectly suited for both end-users and forward-thinking investors, with a layout and location that inspire creativity and long-term value. Whether your vision is to craft a dream home, generate reliable rental income, or pursue a single-family conversion, this property delivers. The expansive triplex provides comfortable living space while the upper unit helps generate strong rental income. For investors, 91 Somers Street represents has immediate upside in a rapidly growing neighborhood, the security of a stable asset, and the strength of a projected pro-forma cap rate of 5.60%.
Spanning approximately 3,304 gross square feet, the property, built in 1910, offers 2,516 square feet of interior residential space plus a 788-square-foot cellar. Set on a generous 18.75' x 100' lot, it benefits from coveted Tax Class 1 status and exceptionally low annual taxes of just $3,999. Zoned R6 the home provides immediate usability as well as future development potential, with an FAR of 2.43 and approximately 2,040 buildable square feet for expansion.
The current layout features a spacious 3-bedroom, 1.5-bathroom triplex beginning on the garden level, complete with a bright living room, updated kitchen, and laundry area. Upstairs, two oversized bedrooms are complemented by a flexible home office, while the unfinished cellar offers versatile potential for a recreation room, studio, or additional storage. A private backyard serves as a tranquil retreat, ideal for entertaining, dining, or quiet relaxation. Above, the top-floor 1.5-bedroom, 1-bathroom unit features an inviting living area and a generously sized kitchen with granite countertops and stainless-steel appliances, making it an excellent income-producing rental or guest suite.
Positioned between Broadway and Atlantic Avenues, 91 Somers Street offers seamless access to Bedford Stuyvesant's rich cultural scene, eclectic dining, shopping, and green spaces. Commuting is effortless with nearby access to the J, Z, A, C, and L subway lines, as well as the LIRR, connecting you easily to the rest of Brooklyn and Manhattan.
Whether you're envisioning a primary residence with rental income, a stable investment with room to grow, or a future single-family conversion, 91 Somers Street delivers an exceptional blend of space, value, and location in one of Brooklyn's most dynamic and historically rich neighborhoods.
Listing Courtesy of Corcoran Group