PRIME EAST VILLAGE PROPERTY W/ APPROVED PLANS
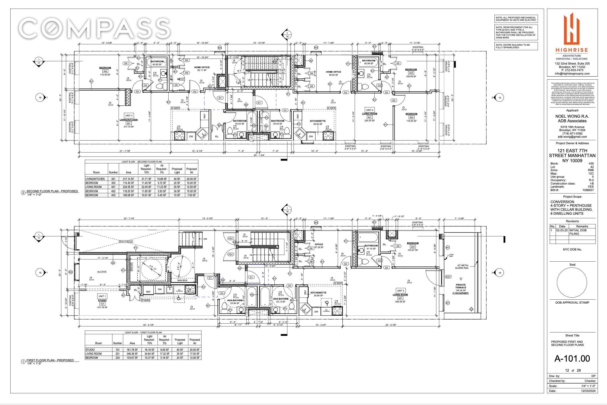
Invest in one of the most exciting NYC neighborhoods the East Village. This property is perfect for a single family conversion, or a 8-10 unit condo or rental conversion. We are selling the property with approved plans for a multi family with 8 units. This is situated on the perfect block with close access to Astor Place, NYU, The new Wegmans and so much more that this amazing neighborhood offers.
Please email for a set up and the approved plans.
ADDRESS: 121 EAST 7TH STREET NY NY 10009
BLOCK #: 435
LOT #: 42
TOTAL ZONING LOT:22'-0" x 97'-6" = 2,145.00 S.F.
ZONE: R8B
TOTAL PROPOSED FLOOR AREA: Approx 10,000 sq. feet
OCCUPANCY CLASS: R-2
CONSTRUCTION CLASS: II-B
JOB DESCRIPTION: PROPOSED 1.5-STORY ENLARGEMENT W/ CELLAR MIX-USE BUILDING
PRIME EAST VILLAGE PROPERTY W/ APPROVED PLANS
Invest in one of the most exciting NYC neighborhoods the East Village. This property is perfect for a single family conversion, or a 8-10 unit condo or rental conversion. We are selling the property with approved plans for a multi family with 8 units. This is situated on the perfect block with close access to Astor Place, NYU, The new Wegmans and so much more that this amazing neighborhood offers.
Please email for a set up and the approved plans.
ADDRESS: 121 EAST 7TH STREET NY NY 10009
BLOCK #: 435
LOT #: 42
TOTAL ZONING LOT:22'-0" x 97'-6" = 2,145.00 S.F.
ZONE: R8B
TOTAL PROPOSED FLOOR AREA: Approx 10,000 sq. feet
OCCUPANCY CLASS: R-2
CONSTRUCTION CLASS: II-B
JOB DESCRIPTION: PROPOSED 1.5-STORY ENLARGEMENT W/ CELLAR MIX-USE BUILDING
Listing Courtesy of Compass