Be sure to reference the video for additional context.
At the foot of Lenox Hill is 640 Park Avenue, which was originally developed by the Fullerton Weaver Realty Company in 1914.
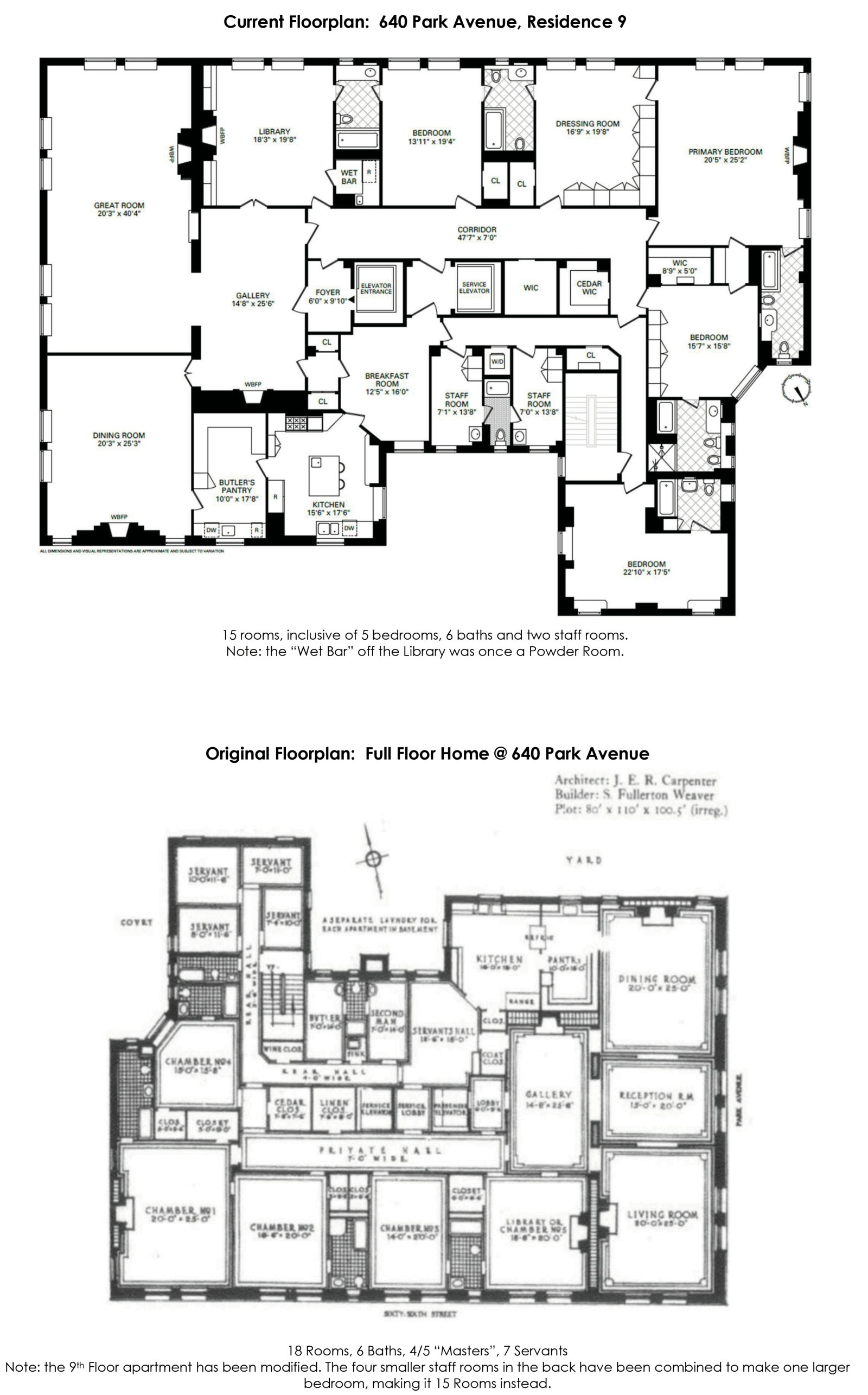
A century ago, The Real Estate Record & Guide, the industry rag of its day, wrote that architect J.E.R. Carpenter "was the father of the modern large apartment here in New York." Later Christopher Gray of The NYT wrote that, "In 1914 Mr. Carpenter designed, and again partly owned, the impressive 640 Park, at 66th Street. It is all limestone, with double sets of Florentine-style windows and one five-bedroom apartment per floor. This marked his arrival into the stratosphere of luxury apartments, with a separate gallery, reception room, wine closet and six servants' rooms, including a separate section for the butler and the 'second man.'"
Upon arriving on the 9th floor and your own private elevator landing, Gray's description of Carpenter's design comes off the page. Once you indeed enter into the commodious, nearly 375 sqft gallery, which is perfect for art, you are struck by the extraordinary volume of this home. As you immerse yourself into the space you realize that your experiencing something different, something special, 10' ceilings and innumerable large outward facing windows, four exposures, views and streams of sun and light throughout. The gorgeous and dramatic SE facing living room and oversized dining room were designed and intentionally positioned lengthwise along Park Avenue to enhance that light. These rooms span nearly 70' with open views overlooking the historic Armory which was built in 1879. Just off the gallery is a lovely south facing library and an unusual and seductive 7' wide and nearly 48' long corridor which leads you to the secluded private wing and further reveals the unique proportion and expansiveness of this full floor residence, currently 15 rooms, inclusive of 5 bedrooms, 6 baths and two staff rooms. To fully grasp the wonders of this home, it must be experienced.
This boutique cooperative on the NW corner of 66th Street, is one of the select-few truly exclusive and distinguished cooperatives on all of Park Avenue. In close proximity to world class restaurants, shopping, entertainment, art and culture, including the Metropolitan Museum of Art, The Frick Collection, Lincoln Center the list goes on the location is unparalleled. There are full time doormen, a resident manager, and a large storage bin is included. There are no summer work rules and pied-a-terres and 35% financing are permitted. There is a 2.5% flip tax payable by the purchaser.
Be sure to reference the video for additional context.
At the foot of Lenox Hill is 640 Park Avenue, which was originally developed by the Fullerton Weaver Realty Company in 1914.
A century ago, The Real Estate Record & Guide, the industry rag of its day, wrote that architect J.E.R. Carpenter "was the father of the modern large apartment here in New York." Later Christopher Gray of The NYT wrote that, "In 1914 Mr. Carpenter designed, and again partly owned, the impressive 640 Park, at 66th Street. It is all limestone, with double sets of Florentine-style windows and one five-bedroom apartment per floor. This marked his arrival into the stratosphere of luxury apartments, with a separate gallery, reception room, wine closet and six servants' rooms, including a separate section for the butler and the 'second man.'"
Upon arriving on the 9th floor and your own private elevator landing, Gray's description of Carpenter's design comes off the page. Once you indeed enter into the commodious, nearly 375 sqft gallery, which is perfect for art, you are struck by the extraordinary volume of this home. As you immerse yourself into the space you realize that your experiencing something different, something special, 10' ceilings and innumerable large outward facing windows, four exposures, views and streams of sun and light throughout. The gorgeous and dramatic SE facing living room and oversized dining room were designed and intentionally positioned lengthwise along Park Avenue to enhance that light. These rooms span nearly 70' with open views overlooking the historic Armory which was built in 1879. Just off the gallery is a lovely south facing library and an unusual and seductive 7' wide and nearly 48' long corridor which leads you to the secluded private wing and further reveals the unique proportion and expansiveness of this full floor residence, currently 15 rooms, inclusive of 5 bedrooms, 6 baths and two staff rooms. To fully grasp the wonders of this home, it must be experienced.
This boutique cooperative on the NW corner of 66th Street, is one of the select-few truly exclusive and distinguished cooperatives on all of Park Avenue. In close proximity to world class restaurants, shopping, entertainment, art and culture, including the Metropolitan Museum of Art, The Frick Collection, Lincoln Center the list goes on the location is unparalleled. There are full time doormen, a resident manager, and a large storage bin is included. There are no summer work rules and pied-a-terres and 35% financing are permitted. There is a 2.5% flip tax payable by the purchaser.
Listing Courtesy of Brown Harris Stevens Residential Sales LLC