Location: East Village - 151 Avenue B, between E.9th & E.10th Streets
Year Built: 1849
Block/Lot: 392/5
Lot Size: 23 X 93
Building size: 23 X 54
Approx. Interior Sq ft: 5590 Ext. Sq ft combined: 1300
Building area Sq ft: 4416
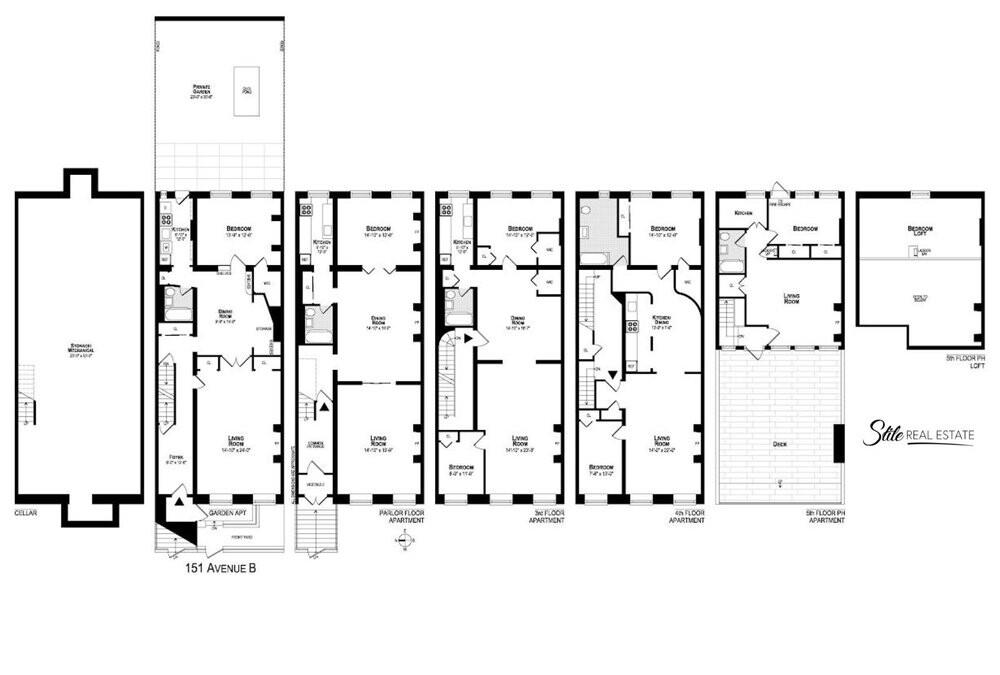
Description: 5 Family Certificate of Occupancy
RE taxes, monthly: $1,605
Projected CAP Rate: 5%
EAST VILLAGE GEM w/LOW TAXES! Rare East Village Opportunity with Owners Duplex + Income-Producing Building.
Built circa 1849 and bordering Tompkins Square Park to the East, The Charlie Parker Residence is a rare example of a Gothic Revival style townhouse. The facade presents gorgeous original details with double wood doors, a decorative relief beneath the projecting box cornice and a well-preserved pointed archway with clustered colonettes.
This five-apartment, 23-foot-wide building offers an impressive combination of historic charm and generous proportions. Featuring high ceilings, original wood floors, and beautifully preserved decorative fireplaces with both marble and wood mantels, each residence exudes classic character. Natural light pours in from the second floor all the way up to the penthouse, enhancing the sense of space throughout. And those apartments also enjoy stunning, unobstructed views overlooking Tompkins Square Park.
There are 4 full-floor apartments: The garden floor, former home of Jazz great Charlie Parker, with a private landscaped garden, a grand parlor floor with original pocket doors and 3 decorative fireplaces, and the third and fourth floors, each with 2 bedrooms. The fourth floor has an open country kitchen and an exposed brick wall in the living room. The Penthouse apartment is set-back, with a huge private deck, skylights, and a loft space over the bedroom. Previously configured, the Garden and Parlor floor apartments can easily be combined to create an owner's duplex!
Perfect those seeking a boutique building in one of Manhattan's most vibrant neighborhoods and handled with care throughout the years, this elegant building holds court in the vibrant neighborhood of the East Village. It also has the honor of 3 designations, The New York City Landmarks Preservation Commission, The State Register of Historic Places and The National Register of Historic Places. In addition, the archway is featured in "Bricks and Brownstones" by Charles Lockwood.
Location: East Village - 151 Avenue B, between E.9th & E.10th Streets
Year Built: 1849
Block/Lot: 392/5
Lot Size: 23 X 93
Building size: 23 X 54
Approx. Interior Sq ft: 5590 Ext. Sq ft combined: 1300
Building area Sq ft: 4416
Description: 5 Family Certificate of Occupancy
RE taxes, monthly: $1,605
Projected CAP Rate: 5%
EAST VILLAGE GEM w/LOW TAXES! Rare East Village Opportunity with Owners Duplex + Income-Producing Building.
Built circa 1849 and bordering Tompkins Square Park to the East, The Charlie Parker Residence is a rare example of a Gothic Revival style townhouse. The facade presents gorgeous original details with double wood doors, a decorative relief beneath the projecting box cornice and a well-preserved pointed archway with clustered colonettes.
This five-apartment, 23-foot-wide building offers an impressive combination of historic charm and generous proportions. Featuring high ceilings, original wood floors, and beautifully preserved decorative fireplaces with both marble and wood mantels, each residence exudes classic character. Natural light pours in from the second floor all the way up to the penthouse, enhancing the sense of space throughout. And those apartments also enjoy stunning, unobstructed views overlooking Tompkins Square Park.
There are 4 full-floor apartments: The garden floor, former home of Jazz great Charlie Parker, with a private landscaped garden, a grand parlor floor with original pocket doors and 3 decorative fireplaces, and the third and fourth floors, each with 2 bedrooms. The fourth floor has an open country kitchen and an exposed brick wall in the living room. The Penthouse apartment is set-back, with a huge private deck, skylights, and a loft space over the bedroom. Previously configured, the Garden and Parlor floor apartments can easily be combined to create an owner's duplex!
Perfect those seeking a boutique building in one of Manhattan's most vibrant neighborhoods and handled with care throughout the years, this elegant building holds court in the vibrant neighborhood of the East Village. It also has the honor of 3 designations, The New York City Landmarks Preservation Commission, The State Register of Historic Places and The National Register of Historic Places. In addition, the archway is featured in "Bricks and Brownstones" by Charles Lockwood.