RARE 23 Wide - Boutique Turnkey Investment Opportunity
8 Bedrooms, 4 Bathrooms, 5,200+ Sq. ft. 4 Free-market Units
Investment Highlights:
- Luxury turnkey free market rental multi-family in excellent condition:
All four units are currently leased under market while generating a good cap rate
- Spacious +5,200 SF layout with high ceilings and spacious rooms
- High end finishes: hardwood floors, stone counter tops, high end appliances, chef's kitchens, radiant-heated bathroom
floors, In-unit W/D's, mini-split HVAC's
- Large front and back garden for curb appeal and entertaining
- Usable air rights allow vertical additions or reconfiguration of layouts into larger 3BR/live-work models
- Strong upside for luxury corporate or short-term rentals with rent premiums of 30%
- Low management costs - Separately metered utilities and modern systems reduce expenses, making operations investor-friendly
- Prime Harlem Location - Across from Harlem Rose Garden, on a tree-lined block near 125th Street retail/dining hub, Whole Foods, Trader Joe's, and major subway/Metro-North lines
An exceptional boutique investment opportunity in the heart of Harlem, 7 East 129th street combines free market income with significant upside. Over 5200 square feet on a 22.5' x 59' frontage, offering curb appeal rarely seen in multi-unit assets. All four free market units are fully renovated featuring luxury finishes and thoughtful layouts. These units appeal to both long-term tenants and furnished rental operators. Investors will benefit from multiple income scenarios available. You can secure immediate yield from in-place leases while unlocking higher returns through repositioning, market-rate increase, or short term strategies.
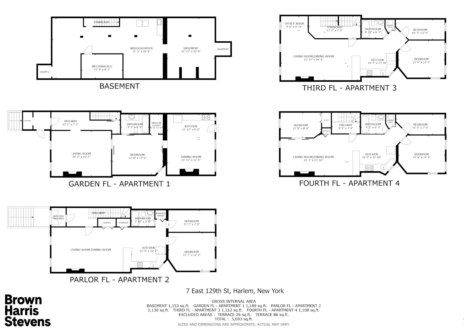
Property Set Up
- Garden Unit: Spacious contemporary 1BR with two-level private garden, radiant-heated bathroom floor, high-end finishes, prime for furnished corporate or short-term use.
- Parlor & Third Floor Units: Spacious floor-through 2BR apartments with 11' ceilings, south-facing light, exposed brick, decorative fireplaces, and chef's kitchens.
- Fourth Floor: Expansive 3BR full-floor with skylights and abundant natural light - great for owner occupancy or premium rental repositioning.
Minutes to Midtown via nearby subway (2/3, 4/5/6) and Metro-North, with Whole Foods, Trader Joe's, Target, and the cultural and dining hub of 125th Street just blocks away. The property's location blends Harlem's residential charm with commercial accessibility, making it a strategic foothold in one of New York City's most dynamic markets to invest in.
7 East 129th Street represents a rare opportunity to acquire a free-market, luxury boutique multi-unit asset in Central Harlem. With a combination of steady income, value add potential, and boutique finishes, this property is an ideal acquisition for seasoned investors, owner-users seeking income offset, or developers looking to unlock additional value in one of New York City's most dynamic neighborhoods.
RARE 23 Wide - Boutique Turnkey Investment Opportunity
8 Bedrooms, 4 Bathrooms, 5,200+ Sq. ft. 4 Free-market Units
Investment Highlights:
- Luxury turnkey free market rental multi-family in excellent condition:
All four units are currently leased under market while generating a good cap rate
- Spacious +5,200 SF layout with high ceilings and spacious rooms
- High end finishes: hardwood floors, stone counter tops, high end appliances, chef's kitchens, radiant-heated bathroom
floors, In-unit W/D's, mini-split HVAC's
- Large front and back garden for curb appeal and entertaining
- Usable air rights allow vertical additions or reconfiguration of layouts into larger 3BR/live-work models
- Strong upside for luxury corporate or short-term rentals with rent premiums of 30%
- Low management costs - Separately metered utilities and modern systems reduce expenses, making operations investor-friendly
- Prime Harlem Location - Across from Harlem Rose Garden, on a tree-lined block near 125th Street retail/dining hub, Whole Foods, Trader Joe's, and major subway/Metro-North lines
An exceptional boutique investment opportunity in the heart of Harlem, 7 East 129th street combines free market income with significant upside. Over 5200 square feet on a 22.5' x 59' frontage, offering curb appeal rarely seen in multi-unit assets. All four free market units are fully renovated featuring luxury finishes and thoughtful layouts. These units appeal to both long-term tenants and furnished rental operators. Investors will benefit from multiple income scenarios available. You can secure immediate yield from in-place leases while unlocking higher returns through repositioning, market-rate increase, or short term strategies.
Property Set Up
- Garden Unit: Spacious contemporary 1BR with two-level private garden, radiant-heated bathroom floor, high-end finishes, prime for furnished corporate or short-term use.
- Parlor & Third Floor Units: Spacious floor-through 2BR apartments with 11' ceilings, south-facing light, exposed brick, decorative fireplaces, and chef's kitchens.
- Fourth Floor: Expansive 3BR full-floor with skylights and abundant natural light - great for owner occupancy or premium rental repositioning.
Minutes to Midtown via nearby subway (2/3, 4/5/6) and Metro-North, with Whole Foods, Trader Joe's, Target, and the cultural and dining hub of 125th Street just blocks away. The property's location blends Harlem's residential charm with commercial accessibility, making it a strategic foothold in one of New York City's most dynamic markets to invest in.
7 East 129th Street represents a rare opportunity to acquire a free-market, luxury boutique multi-unit asset in Central Harlem. With a combination of steady income, value add potential, and boutique finishes, this property is an ideal acquisition for seasoned investors, owner-users seeking income offset, or developers looking to unlock additional value in one of New York City's most dynamic neighborhoods.
Listing Courtesy of Brown Harris Stevens Residential Sales LLC